PVC okna Linear Line Flat
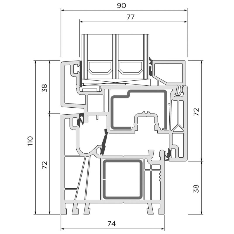
Vsestranskost sistema Linear Line Flat dopolnjuje elegantna linearna zasnova, ki sledi minimalističnim trendom sodobne arhitekture, saj ima profil na zunanji strani okna poravnani površini krila in okvirja, kar poudarja čist, linearen videz. Z vgradno globino 74 mm predstavlja korak naprej v segmentu 70 mm sistemov, zlasti v tehničnem, ekonomskem in ekološkem smislu, saj je bil razvit za izpolnjevanje širokega spektra zahtev. V kombinaciji s sodobnim funkcionalnim steklom zagotavlja visoko stabilnost, večkomorna konstrukcija pa prispeva k večji varnosti ter izboljšani zvočni in toplotni izolativnosti.

TOPLOTNA IZOLATIVNOST
Koeficient toplotne prehodnosti okvirja Uf = do 1,2 W/m²K. Koeficient toplotne prehodnosti okna Uw = do 0,79 W/m²K s troslojnim steklom in distančnikom Swisspacer Ultimate.

Tri prožna in odporna toplotno vpeta tesnila iz EPDM materiala zagotavljajo, da je stik stekla in profila zatesnjen, s čimer se ohranjajo najboljše toplotno in zvočno izolativne lastnosti okna.

Večkomorni okvir in krilo poleg tesnil zagotavljajo boljšo izolativnost, kar ustreza energetsko varčni gradnji.

VARNOST
Zagotovljeno kakovostno varnostno okovje Winkhaus s sistemom zapiranja »gobica« po celotnem obodu z daljšo življenjsko dobo in kakovostna pololiva Secustic.

Okovje ActivPilot Concept z višjo zanesljivostjo in večjo nosilnostjo do 150 kg.

ZASTEKLITEV
Troslojna stekla z distančniki po izbiri dobavljivi v ALU ali PVC materialu, Swisspacer Ultimate in možnost izolativnega stekla do Ug=0,5 W/m²K. Možna varnostna stekla do RC2 varnostne stopnje.
Zaradi globokega steklitvenega utora omogoča vgradnjo stekel od debeline 38 do 66 mm, vključno s troslojnimi in funkcijsko optimiziranimi zasteklitvami za večjo zvočno zaščito ali varnost, ob upoštevanju statičnih omejitev.

DIMENZIJE IN ELEGANCA
Manjša vgradna debelina okvirja za novogradnje in obnove ter eleganca s poravnanima zunanjima površinama okvirja in krila.

Arhitekturna rešitev za veliko svetlobe, okna, okenska vrata ter drsne stene do višine 2,5 m.
Ostali podatki
- Enokrilna okna
- Dvokrilna okna brez vmesnega pokončnika ali z vmesnim pokončnikom
- Enokrilna in dvokrilna balkonska vrata
- HS dvižno drsna pomična vrata
- Sestavljene stene
Osnovna izvedba vseh MIK oken iz PVC programa je v beli barvi, s tesnili v črni barvi na notranji strani in sivi na okenskih krilih.
Linear line Flat profil je dobavljiv v beli barvi in v dekorjih.
Barva

Bela
Standardni dekorji
Lesni dekorji dajo oknom iz PVC programov videz lesa. Izvedbe so možne tako na notranji kot na zunanji strani oken.

RAL 7016
Glatt

Oreh

Mahagoni

Zlati hrast
Razširjena paleta dekorjev

Alux DB703

Renolit UltiMatt schwarz

RAL 7001

RAL 7012

RAL 7035

RAL 7039

RAL 9001

Močvirski hrast

Oregon

Rustikalni hrast

Gorski bor

Douglas črtasta jelka

Svetel hrast

Meranti

AnTEAK

Svetel oreh

Češnja

Sheffieldski svetel hrast

Winchester XA
Razširjena paleta dekorjev z lesnim vzorcem Realwood

Realwood Woodtec Turner Oak malt

Realwood Ginger Oak

Realwood Honey Oak

Realwood Weissbach Eiche

Realwood RAL 9010
Reinweiß
Paleta žametnih dekorjev Mattex
Spoznajte novo dimenzijo dekorativnih folij, ki so jih v GEALAN-u razvili v sodelovanju s podjetjem Continental. Te ekskluzivne folije navdušujejo z žametnim videzom, izjemno nizkim odbojem svetlobe in mehkim otipom (kot pri prašno obarvanem aluminiju), ki vašim oknom podarijo prestižen, miren videz brez motečih odsevov. Kot vrhunska alternativa gladkim površinam folije Mattex narekujejo sodobne trende in zagotavljajo ekskluzivnost v modernih odtenkih, kot so Jet Black, Anthrazitgrau in Deep Bronze. Za dolgotrajno ohranitev žlahtnega izgleda zahtevajo skrbno obdelavo ter uporabo izključno priporočenih čistilnih sredstev.

Jet Black
Mattex

Anthrazitgrau Mattex

Quarzgrau Mattex

Umbragrau Mattex

Basaltgrau Mattex

Deep Bronze Mattex

Reinweiß Mattex

Fenstergrau Mattex

Schwarzgrau Mattex
Uporaba kakovostnih materialov, natančna izdelava brez možnosti odstopanj v kakovosti ter kakovostno varnostno okovje (gobica sistem) zagotavlja že v standardni izvedbi stavbnega pohištva MIK visoko stopnjo zaščite proti poškodbam in vlomu.
Pri zasteklitvi večjih odprtin, predvsem na lažje dostopnih in slabše varovanih mestih, svetujemo še dodatno protivlomno zaščito okovja in stekla vašega stavbnega pohištva. Okenski sistemi MIK omogočajo varnostno zaščito oken proti poškodbam in vlomu vse do najvišje RC2 stopnje.
Stopnje protivlomne odpornosti
Število varnostnih zaklopov je odvisno tudi od velikosti okna.
Osnovna OSN


Osnovni zapirni element
1. stopnja RC 1


Varnostni zapirni element
2. stopnja RC 2


Premium varnostni sistem
RC Resistance class = WK Widerstandstandsklasse = Varnostna protivlomna zaščita Stopnja RC je odvisna od primerne izbire stopnje varnosti okovja, sestave stekla in varnostne pololive.
Primerjajte MIKove montaže in izberite za vas najprimernejšo
Zaupajte montažo oken izkušenim strokovnjakom podjetja MIK, ki bodo svoje delo opravili kakovostno in skladno z vsemi tehničnimi zahtevami ter vam tako zagotovili dolgotrajno uporabo oken.
Za vsa okna iz ponudbe so možne različne izbire zunanjih in notranjih senčil, zunanjih in notranjih polic, tesnil, varnostnih okovij, zasteklitev in kakovostnih pololiv.

Ključne prednosti GEALAN-CAIRE® flex prezračevanja
| Nevidna integracija | Prezračevalna enota je skrita v utoru okenskeg krila. |
| Samodejno delovanje | Deluje brez elektrike in ni potrebno vklapljanje ali nadzor. |
| Prihranek energije | Pasivni prezračevalni sistem brez elektrike in prezračevanje z zaprtim oknom. |
| Pretok zraka | Odvisen od razlike v zračnem tlaku in števila enot na oknu. |
| Večja varnost | Ni potrebe po odprtem oknu. |
English
Deutsch
Italiano
































